Objektart
Reihenmittelhaus
Ort
Monheim am Rhein
Nutzungsart
Wohnen
Zimmeranzahl
6
Schlafzimmer
5
Badezimmer
2
Weitere Badezimmer
1
Wohnfläche
138,29 m²
Grundstücksfläche
214,00 m²
Baujahr
2009
Keller
ja
Garage-Stellplatz
1
Kaufpreis
589.000 €
Art
Verbrauch
Endenergieverbrauch Endenergieverbrauch Endenergie- verbrauch
40.70 kWh/(m²*a)
Energieeffizienzklasse
A
Gültig bis
16.11.2035
25
50
75
100
125
150
175
200
225
Dieses moderne Reihenmittelhaus aus dem Baujahr 2009 befindet sich in einer ruhigen und familienfreundlichen Siedlung an der Nikolaus-Kopernikus-Straße in Monheim am Rhein. Die Nachbarschaft ist geprägt von gepflegten Einfamilien- und Reihenhäusern sowie von grünen Bäumen direkt vor der Haustür, die dem Wohnumfeld ein besonders harmonisches und einladendes Ambiente verleihen.
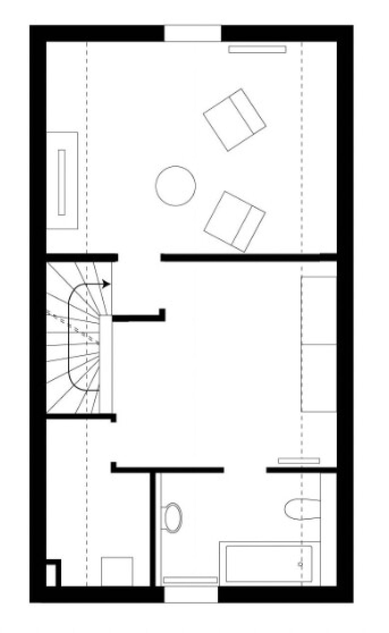
Beim Betreten des Hauses werden Sie von einer großzügigen Diele empfangen, die den offenen, modernen Charakter des Hauses sofort erkennen lässt. Die Diele bietet ausreichend Platz für Garderobe und Schuhablagen und bildet den zentralen Zugang zu den Räumen des Erdgeschosses. Hier befindet sich zudem ein praktisches Gäste-WC, das den Wohnkomfort perfekt ergänzt. Von der Diele aus gelangen Sie in das lichtdurchflutete Wohnzimmer, das zusammen mit der offen gestalteten Küche einen großzügigen und kommunikativen Wohnbereich bildet. Die bodentiefen Fenster im Wohnzimmer sorgen für viel Tageslicht und einen angenehmen Ausblick in den Garten. Vom Wohnzimmer aus haben Sie direkten Zugang zur Terrasse, die mit einem hochwertigen Holzbodenbelag ausgestattet ist. Der Garten ist schön angelegt und mit Steinen gestaltet, was ihm ein mediterranes, fast schon „Ibiza“-ähnliches Flair verleiht. Das Erdgeschoss ist mit eleganten Fliesen ausgestattet, die nicht nur stilvoll wirken, sondern auch besonders langlebig und pflegeleicht sind. Insgesamt verfügt das Haus über sechs gut geschnittene Zimmer, die sich ideal für Familien eignen. Im Obergeschoss finden Sie drei Schlafzimmer sowie ein helles Tageslichtbad mit Dusche, das durch seine Fenster angenehm belichtet wird. Das Dachgeschoss bietet zwei weitere Zimmer und ein großzügiges Tageslichtbad mit Badewanne, das ebenfalls über Fenster verfügt. Die geschlossene Treppe vom Erdgeschoss ins Obergeschoss ist mit modernen LED-Spots versehen, die sowohl für Beleuchtung als auch für stimmungsvolle Akzente sorgen.
Beim Betreten des Hauses werden Sie von einer großzügigen Diele empfangen, die den offenen, modernen Charakter des Hauses sofort erkennen lässt. Die Diele bietet ausreichend Platz für Garderobe und Schuhablagen und bildet den zentralen Zugang zu den Räumen des Erdgeschosses. Hier befindet sich zudem ein praktisches Gäste-WC, das den Wohnkomfort perfekt ergänzt. Von der Diele aus gelangen Sie in das lichtdurchflutete Wohnzimmer, das zusammen mit der offen gestalteten Küche einen großzügigen und kommunikativen Wohnbereich bildet. Die bodentiefen Fenster im Wohnzimmer sorgen für viel Tageslicht und einen angenehmen Ausblick in den Garten. Vom Wohnzimmer aus haben Sie direkten Zugang zur Terrasse, die mit einem hochwertigen Holzbodenbelag ausgestattet ist. Der Garten ist schön angelegt und mit Steinen gestaltet, was ihm ein mediterranes, fast schon „Ibiza“-ähnliches Flair verleiht. Das Erdgeschoss ist mit eleganten Fliesen ausgestattet, die nicht nur stilvoll wirken, sondern auch besonders langlebig und pflegeleicht sind. Insgesamt verfügt das Haus über sechs gut geschnittene Zimmer, die sich ideal für Familien eignen. Im Obergeschoss finden Sie drei Schlafzimmer sowie ein helles Tageslichtbad mit Dusche, das durch seine Fenster angenehm belichtet wird. Das Dachgeschoss bietet zwei weitere Zimmer und ein großzügiges Tageslichtbad mit Badewanne, das ebenfalls über Fenster verfügt. Die geschlossene Treppe vom Erdgeschoss ins Obergeschoss ist mit modernen LED-Spots versehen, die sowohl für Beleuchtung als auch für stimmungsvolle Akzente sorgen.
+++ Ruhige Lage in gepflegter Siedlung an der Blee +++
+++ Moderne Stadthausarchitektur mit Spitzgiebel +++
+++ Bodentiefe Fenster in mehreren Räumen +++
+++ Elektrische Rollläden im Erdgeschoss (Wohnzimmer, Küche) +++
+++ Geschlossene Treppe mit modernen LED-Spots +++
+++ Häuser akustisch getrennt durch Schallschutzfuge +++
+++ Außen- und Haustrennwände aus Kalksandsteinmauerwerk +++
+++ Wärmedämmverbundsystem nach Energiestandards des Baujahrs +++
+++ Moderne Gas-Brennwertheizung +++
+++ Warmwasserspeicher im Heizsystem integriert +++
+++ Heizkörper mit Thermostatventilen +++
+++ Garage + zusätzliche Stellplätze +++
+++ Außenstellplätze gepflastert mit Betonsteinen +++
+++ Terrasse mit Holzbodenbelag +++
+++ schöner Garten mit Steinelementen +++
+++ Moderne Stadthausarchitektur mit Spitzgiebel +++
+++ Bodentiefe Fenster in mehreren Räumen +++
+++ Elektrische Rollläden im Erdgeschoss (Wohnzimmer, Küche) +++
+++ Geschlossene Treppe mit modernen LED-Spots +++
+++ Häuser akustisch getrennt durch Schallschutzfuge +++
+++ Außen- und Haustrennwände aus Kalksandsteinmauerwerk +++
+++ Wärmedämmverbundsystem nach Energiestandards des Baujahrs +++
+++ Moderne Gas-Brennwertheizung +++
+++ Warmwasserspeicher im Heizsystem integriert +++
+++ Heizkörper mit Thermostatventilen +++
+++ Garage + zusätzliche Stellplätze +++
+++ Außenstellplätze gepflastert mit Betonsteinen +++
+++ Terrasse mit Holzbodenbelag +++
+++ schöner Garten mit Steinelementen +++
Eine Lage wie sie schöner nicht sein könnte: umrahmt von großzügigen Wald- und Grünflächen, vielen Seen und dem wunderschönen Rhein bietet die Stadt jede Menge Sport- und Freizeitmöglichkeiten. Rein geografisch gesehen ist schon die Lage zwischen Düsseldorf und Köln exponiert.
Nicht nur in der urigen Altstadt begegnet man Geschichte und Kultur. In Monheim am Rhein treffen sich lebendige Historie und moderne Lebenskultur.
Monheim am Rhein hat für jeden Geschmack ein Angebot. Es bietet alle Einkaufsmöglichkeiten und Einzelhandelsgeschäfte, Kindergärten und Schulen.
Als „Hauptstadt der Kinder“ präsentiert sich Monheim am Rhein als besonders familienfreundlich, denn seit 2014 ist Monheim die einzige Stadt in NRW, die die Betreuung für Kinder von null bis zehn Jahren im Kita- und Ganztagesbereich gänzlich kostenfrei anbietet. Ein weiterer Ausbau ist geplant. Bis 2018 werden weitere fünf neue Kindertagesstätten entstehen.
Idyllisch ohne Kompromisse - in Monheim am Rhein lebt man in einer familienfreundlichen Stadt - naturnah mit großem Erholungswert und jeder Menge Freizeit- und Kulturmöglichkeiten um die Ecke.
DIE INFRASTRUKTUR
Verkehrstechnisch ist die Stadt ebenfalls hervorragend angebunden. Das engmaschige Autobahnnetz aus A3, A59 und A542 verbindet Monheim am Rhein nicht nur sehr gut mit dem europäischen Fernstraßennetz, sondern auch mit den Großstädten Köln und Düsseldorf sowie deren ca. 30 Autominuten entfernten Flughäfen Düsseldorf International und Köln/Bonn. Darüber hinaus ist die Stadt auch über drei S-Bahn-Haltestellen an der Stadtgrenze und ein Buszubringerverkehr im 10-Minuten-Takt ausgezeichnet an die öffentlichen Verkehrsmittel angeschlossen. So sind die Innenstädte Köln und Düsseldorf von Monheim am Rhein aus mit einem Katzensprung erreichbar.
Nicht nur in der urigen Altstadt begegnet man Geschichte und Kultur. In Monheim am Rhein treffen sich lebendige Historie und moderne Lebenskultur.
Monheim am Rhein hat für jeden Geschmack ein Angebot. Es bietet alle Einkaufsmöglichkeiten und Einzelhandelsgeschäfte, Kindergärten und Schulen.
Als „Hauptstadt der Kinder“ präsentiert sich Monheim am Rhein als besonders familienfreundlich, denn seit 2014 ist Monheim die einzige Stadt in NRW, die die Betreuung für Kinder von null bis zehn Jahren im Kita- und Ganztagesbereich gänzlich kostenfrei anbietet. Ein weiterer Ausbau ist geplant. Bis 2018 werden weitere fünf neue Kindertagesstätten entstehen.
Idyllisch ohne Kompromisse - in Monheim am Rhein lebt man in einer familienfreundlichen Stadt - naturnah mit großem Erholungswert und jeder Menge Freizeit- und Kulturmöglichkeiten um die Ecke.
DIE INFRASTRUKTUR
Verkehrstechnisch ist die Stadt ebenfalls hervorragend angebunden. Das engmaschige Autobahnnetz aus A3, A59 und A542 verbindet Monheim am Rhein nicht nur sehr gut mit dem europäischen Fernstraßennetz, sondern auch mit den Großstädten Köln und Düsseldorf sowie deren ca. 30 Autominuten entfernten Flughäfen Düsseldorf International und Köln/Bonn. Darüber hinaus ist die Stadt auch über drei S-Bahn-Haltestellen an der Stadtgrenze und ein Buszubringerverkehr im 10-Minuten-Takt ausgezeichnet an die öffentlichen Verkehrsmittel angeschlossen. So sind die Innenstädte Köln und Düsseldorf von Monheim am Rhein aus mit einem Katzensprung erreichbar.
Für ein besonders ruhiges Wohngefühl sorgt die akustische Trennung der Häuser durch eine spezielle Schallschutzfuge. Der vollunterkellerte Bereich mit ca. 38 m² bietet zusätzlichen Stauraum, Platz für Hobbys oder andere Nutzungsmöglichkeiten.
Die Architektur des Hauses vereint zeitlose Eleganz mit moderner Funktionalität: Das Stadthaus mit Satteldach und Spitzgiebelfassade, die helle Putzfassade und elegant abgesetzte graue Fenstersimse verleihen dem Gebäude eine hochwertige und harmonische Ausstrahlung. Bodentiefe Fenster in mehreren Räumen sorgen für helle und freundliche Wohnräume, und im Erdgeschoss sind elektrische Rollläden installiert, die Komfort und Sicherheit bieten.
Die Bauweise des Hauses überzeugt durch Qualität und Nachhaltigkeit: Die Außenwände der Wohngeschosse sowie die Haustrennwand bestehen aus massivem Kalksandstein mit Trennfuge zum Nachbarhaus. Das energiesparende Wärmedämmverbundsystem entspricht den modernen Standards des Baujahres. Die Warmwasserversorgung erfolgt über einen im Heizsystem integrierten Warmwasserspeicher, während die Beheizung durch eine moderne Gas-Brennwertheizung und Heizkörper mit Thermostatventilen erfolgt.
Auch der Außenbereich bietet hohen Wohnkomfort: Zur Immobilie gehören eine Garage sowie zusätzliche Stellplätze vor der Garage, die mit Betonsteinen gepflastert sind. Die Terrasse bietet einen attraktiven Platz zum Entspannen und Genießen, und der Garten mit seinen Steinelementen sorgt für ein mediterranes Flair, das zum Verweilen einlädt.
Dieses Reihenmittelhaus verbindet stilvolles, modernes Wohnen mit Lichtdurchflutung, Energieeffizienz und einer ruhigen, familienfreundlichen Lage. Es bietet ein ideales Zuhause für Familien, die Komfort, modernes Design und ein harmonisches Wohnumfeld zu schätzen wissen.
Die Architektur des Hauses vereint zeitlose Eleganz mit moderner Funktionalität: Das Stadthaus mit Satteldach und Spitzgiebelfassade, die helle Putzfassade und elegant abgesetzte graue Fenstersimse verleihen dem Gebäude eine hochwertige und harmonische Ausstrahlung. Bodentiefe Fenster in mehreren Räumen sorgen für helle und freundliche Wohnräume, und im Erdgeschoss sind elektrische Rollläden installiert, die Komfort und Sicherheit bieten.
Die Bauweise des Hauses überzeugt durch Qualität und Nachhaltigkeit: Die Außenwände der Wohngeschosse sowie die Haustrennwand bestehen aus massivem Kalksandstein mit Trennfuge zum Nachbarhaus. Das energiesparende Wärmedämmverbundsystem entspricht den modernen Standards des Baujahres. Die Warmwasserversorgung erfolgt über einen im Heizsystem integrierten Warmwasserspeicher, während die Beheizung durch eine moderne Gas-Brennwertheizung und Heizkörper mit Thermostatventilen erfolgt.
Auch der Außenbereich bietet hohen Wohnkomfort: Zur Immobilie gehören eine Garage sowie zusätzliche Stellplätze vor der Garage, die mit Betonsteinen gepflastert sind. Die Terrasse bietet einen attraktiven Platz zum Entspannen und Genießen, und der Garten mit seinen Steinelementen sorgt für ein mediterranes Flair, das zum Verweilen einlädt.
Dieses Reihenmittelhaus verbindet stilvolles, modernes Wohnen mit Lichtdurchflutung, Energieeffizienz und einer ruhigen, familienfreundlichen Lage. Es bietet ein ideales Zuhause für Familien, die Komfort, modernes Design und ein harmonisches Wohnumfeld zu schätzen wissen.
Ihr Ansprechpartner




